Продаю производственное помещение 50кв. м., Бета сторес -2 .
8 800 000 сом
Продаю
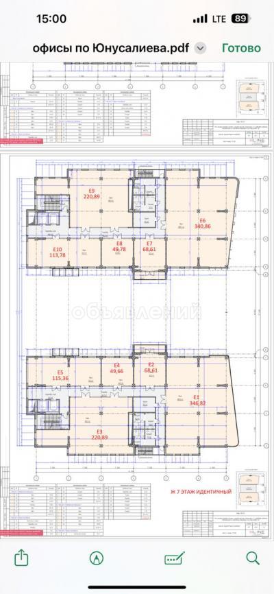
Продаю коммерческое помещение, в строящемся торговом центре по Юнусалиева рядом с Бета сторис -2
Площадь 49,66м2
Этаж 6 из 8
Сдача объекта под ПСО осень 2026 г
Сейчас монолит на 2 этаже
Паркинг -2этажа
‼️Первая линия по Юнусалиева ‼️
Хорошая локация
Цена 100 000$
Площадь 49,66м2
Этаж 6 из 8
Сдача объекта под ПСО осень 2026 г
Сейчас монолит на 2 этаже
Паркинг -2этажа
‼️Первая линия по Юнусалиева ‼️
Хорошая локация
Цена 100 000$